1212 Sage Lane Rupert, ID 83350
Directions
located north of Minidoka Memorial Hospital
Price: $384,000
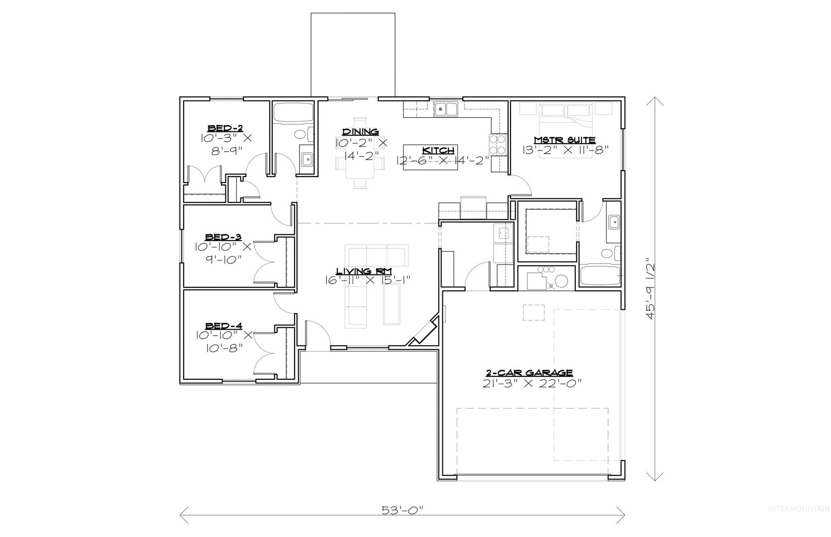
Beds: 4
Baths: 2
Garages: 3
Type: Single Family Residence
Area: Burley-Rupert-MiniCassia - 2005
Land Size: 10000 SF - .49 AC
SqFt: 1501
Age: Under Construction
Acres: 0.27
Garage Type: true
Subdivision: Country Fields
Year Built: 2025
Construction: Stone, Stucco, HardiPlank Type
Lot Size: 125x95 x 125x95
Includes
Fireplace: One, Gas
Air Conditioned: true
Water: City Service
Heating: Forced Air, Natural Gas
Schools
School District: Minidoka County School District #331
Sr High School: Minico
Jr High School: East Minico
Grade School: Rupert
Contact for more details:
A-Team Consultants
1099 S Wells St #200, Meridian, ID 83642
Phone: 208.761.1735 Email: info@ateamboise.com
1099 S Wells St #200, Meridian, ID 83642
Phone: 208.761.1735 Email: info@ateamboise.com
Description
Opportunity awaits in the newest phase at Country Fields Subdivision, where true craftsmanship meets small-town charm. This 4-bedroom home offered by award winning Canyon Creek Construction offers a spacious open layout filled with natural light, ideal for both entertaining and everyday living. The primary suite includes a walk-in shower and closet designed for comfort and convenience. Located near schools, medical facilities, and the vibrant Rupert Town Square, you’ll enjoy easy access to all the essentials. With quality finishes and an unbeatable location, this home represents one of the best values in the market today. Don’t wait! Schedule your private showing and come see why our homes continue to be one of the area`s most desirable new construction choices!
Legal Description:
Lot 31 Block 3 Country Fields Subdivision Phase 3 Minidoka County, Idaho
Lot 31 Block 3 Country Fields Subdivision Phase 3 Minidoka County, Idaho
Listing info for this property courtesy of H & L Real Estate Company Information deemed reliable but not guaranteed. Buyer to verify all information. All properties are subject to prior sale, change or withdrawal. Neither listing broker(s), shall be responsible for any typographical errors, misinformation, misprints and shall be held totally harmless. |