Property Search Details

618 E Krall St Boise, ID 83712

Directions

SE on State St, NE on Reserve St, S on Ave E, E on Krall St

Price: $749,900
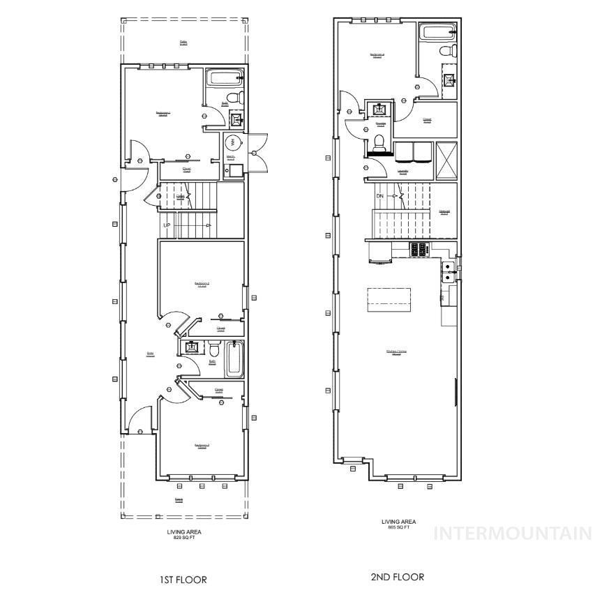
Beds: 4
Baths: 3.5
Garages: 2
Type: Single Family Residence
Area: Boise NE - 0200
Land Size: Sm Lot 5999 SF, Auto Sprinkler System, Full Sprink
SqFt: 1694
Age: Under Construction
Acres: 0.068
Garage Type: false
Subdivision: 0 Not Applicable
Year Built: 2025
Construction: Frame
Lot Size: 121.98x24.44 x 121.98x24.44

Includes

Air Conditioned: false
Water: City Service
Heating: Forced Air, Natural Gas

Schools

School District: Boise School District #1
Sr High School: Boise
Jr High School: North Jr
Grade School: Roosevelt

Contact for more details:

A-Team Consultants
1099 S Wells St #200, Meridian, ID 83642
Phone: 208.761.1735   Email: info@ateamboise.com

Description

Presenting an unbeatable investment opportunity and refined living by Cook Brothers Construction in one of the most coveted pockets of Boise`s prized North End. This 4 bed, 3.5 bath home features unique second story living, two en-suite bedrooms and a detached two car garage. Its prime location has unbeatable access to St. Luke`s Hospital, Military Reserve Trailhead and the Boise Foothills, Downtown Boise and historic Hyde Park. Enjoy strong rental income potential, whether catering to extended stays or providing premium short-term accommodations. High-end finishes and a sought-after location make this property an excellent addition to any investment portfolio, or a perfect personal residence. Do not miss this one!
Legal Description:
PAR #0802 POR LOT 16 BLK 17 JOHN KRALLS ADD AMD PARCEL A ROS 14765 #0800-S
Listing info for this property courtesy of  Amherst Madison  Information deemed reliable but not guaranteed. Buyer to verify all information. All properties are subject to prior sale, change or withdrawal. Neither listing broker(s), shall be responsible for any typographical errors, misinformation, misprints and shall be held totally harmless.