615 E Trinidad Meridian, ID 83642
Directions
From Meridian Rd., E. on Overland, S. on SE 5th Wy., E on Trinidad Dr. to house on the right
Price: $999,900
Beds: 6
Baths: 4
Garages: 5
Type: Single Family Residence
Area: Meridian SE - 1000
Land Size: 10000 SF - .49 AC, Garden, Sidewalks, Full Sprinkl
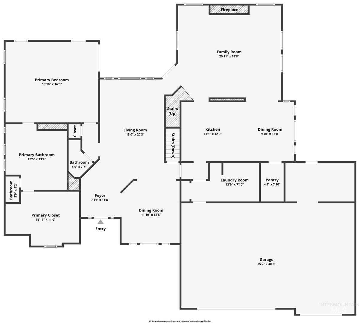
SqFt: 4088
Acres: 0.3
Garage Type: true
Subdivision: Meridian Greens
Year Built: 1999
Construction: Frame, Stone, Stucco
Includes
Fireplace: One, Two, Gas
Air Conditioned: true
Water: City Service
Heating: Heated, Forced Air, Natural Gas, Ductless/Mini Split
Schools
School District: West Ada School District
Sr High School: Mountain View
Jr High School: Victory
Grade School: Hillsdale
Contact for more details:
A-Team Consultants
1099 S Wells St #200, Meridian, ID 83642
Phone: 208.761.1735 Email: info@ateamboise.com
1099 S Wells St #200, Meridian, ID 83642
Phone: 208.761.1735 Email: info@ateamboise.com
Description
Welcome to 615 E Trinidad – a stunning modern farmhouse retreat in the heart of Meridian! This beautifully crafted 4,088 sq ft home offers 5 spacious bedrooms, 4.5 bathrooms, and a dedicated office/flex room, designed with both style and function in mind. The open-concept floor plan is filled with natural light, featuring a chef’s kitchen, high ceilings, and elegant finishes that create the perfect blend of comfort and sophistication. Step outside to your large, fully landscaped yard—ideal for entertaining, relaxing, or simply enjoying Idaho’s gorgeous seasons. The property also includes an impressive full shop, providing exceptional space for projects, storage, or extra vehicles—truly a rare find in this location! With its modern farmhouse feel, abundant natural light, and versatile layout, this home delivers the perfect balance of luxury and livability in one of Meridian’s most desirable neighborhoods.
Legal Description:
Lot 3 Blk 18 Meridian Greens Unit #3
Lot 3 Blk 18 Meridian Greens Unit #3
| Listing info for this property courtesy of THG Real Estate Information deemed reliable but not guaranteed. Buyer to verify all information. All properties are subject to prior sale, change or withdrawal. Neither listing broker(s), shall be responsible for any typographical errors, misinformation, misprints and shall be held totally harmless. |
















































