Property Search Details

6431 Raptor Ridge Ln Melba, ID 83641

Directions

Heading South on Southside, turn East on Melmont Rd, Turn North on Raptor Ridge Lane, Home and land is first on the left side of the street.

Price: $1,200,000
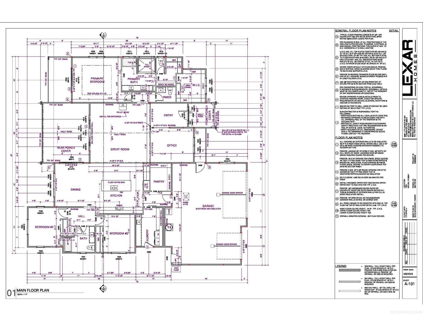
Beds: 3
Baths: 2
Garages: 3
Type: Single Family w/ Acreage
Area: Melba - 1265
Land Size: 5 - 9.9 Acres, Horses, Views, Corner Lot, Rolling
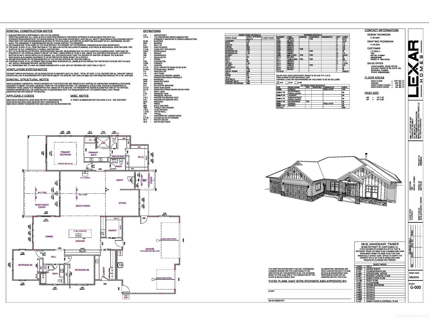
SqFt: 2727
Age: Under Construction
Acres: 6.26
Garage Type: true
Subdivision: 0 Not Applicable
Year Built: 2025
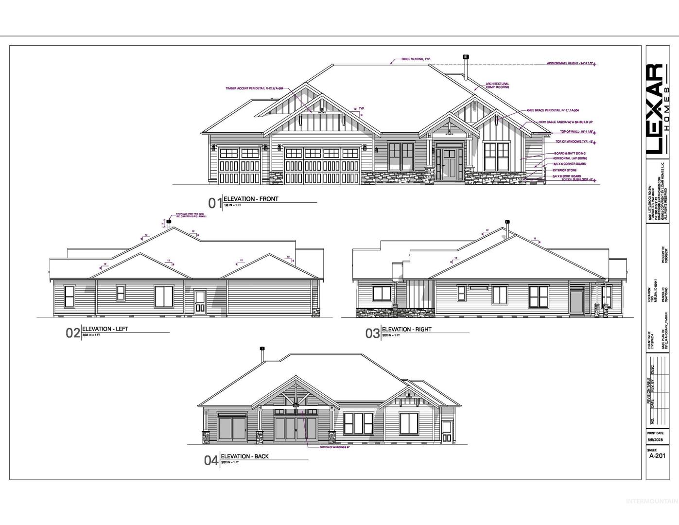
Construction: Frame, HardiPlank Type
Lot Size: 661x419 x 661x419

Includes

Fireplace: Propane
Air Conditioned: true
Water: Well
Heating: Propane

Schools

School District: Melba School District #136
Sr High School: Melba
Jr High School: Melba Jr
Grade School: Melba

Contact for more details:

A-Team Consultants
1099 S Wells St #200, Meridian, ID 83642
Phone: 208.761.1735   Email: info@ateamboise.com

Description

Situated on a sprawling 6.26-acre parcel, this custom home offers unparalleled views of the majestic Owyhee Mountains. Step inside to discover a thoughtfully designed floor plan that includes a split layout with 3 bedrooms plus an office. The master suite is a true retreat, featuring a soaker tub, walk-in shower, and his and hers closets, offering a perfect blend of comfort and convenience. Prepare to be wowed by the massive gourmet kitchen, equipped with top-of-the-line appliances, custom cabinetry, and a center island – the ideal space for culinary creations and entertaining guests. Storage is abundant throughout the home, ensuring that every item has its place. Outside, the outdoor living space beckons you to relax and unwind while taking in the extraordinary mountain views that stretch before you. Whether you`re hosting a gathering or enjoying a quiet evening under the stars, this outdoor oasis is the perfect backdrop for every occasion. Don`t miss the opportunity to own this exceptional property that combines luxury, comfort, and unbeatable views. Experience the best of Idaho living in this one-of-a-kind custom home. Schedule a showing today and turn your dream of mountainous living into a reality!
Legal Description:
13-1N-2W SE TX 24547 IN SWSE
Listing info for this property courtesy of  Silvercreek Realty Group  Information deemed reliable but not guaranteed. Buyer to verify all information. All properties are subject to prior sale, change or withdrawal. Neither listing broker(s), shall be responsible for any typographical errors, misinformation, misprints and shall be held totally harmless.