1151 Iron Eagle Drive Eagle, ID 83616
Directions
From the corner of Highway 44 and Edgewood head North on Edgewood, West on Iron Eagle to the address.
Price: $123,712
Beds:
Baths: 0
Garages:
Type:
Area: Eagle - 0900
Land Size: Standard Lot 6000-9999 SF
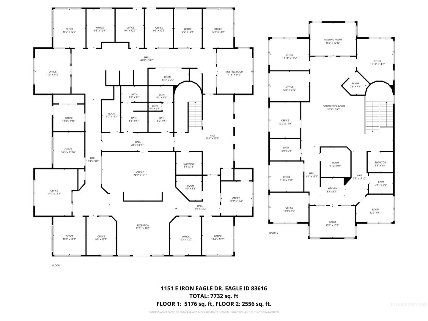
SqFt: 7732
Acres: 0.19
Year Built: 2006
Construction: Concrete
Contact for more details:
A-Team Consultants
1099 S Wells St #200, Meridian, ID 83642
Phone: 208.761.1735 Email: info@ateamboise.com
1099 S Wells St #200, Meridian, ID 83642
Phone: 208.761.1735 Email: info@ateamboise.com
Description
This professional office building in Eagle, Idaho delivers a polished, flexible space ideal for a wide range of businesses. Offered at $16.00 /SF/YR + NNN. Conveniently located in Eagles Business core off of State Street, the property features multiple entrances, private offices, conference rooms, and formal reception areas, along with restrooms on each level, elevator, and ample parking. Designed for long-term success, it’s perfect for legal, financial, or executive users seeking a high-visibility location in one of the Treasure Valley’s most desirable communities.| Listing info for this property courtesy of Broker Boise Information deemed reliable but not guaranteed. Buyer to verify all information. All properties are subject to prior sale, change or withdrawal. Neither listing broker(s), shall be responsible for any typographical errors, misinformation, misprints and shall be held totally harmless. |































