603 W Palouse River Dr. #20r # 20R Moscow, ID 83843
Directions
603 W Palouse River Drive, 2nd loop, at the far end of the park
Price: $112,000
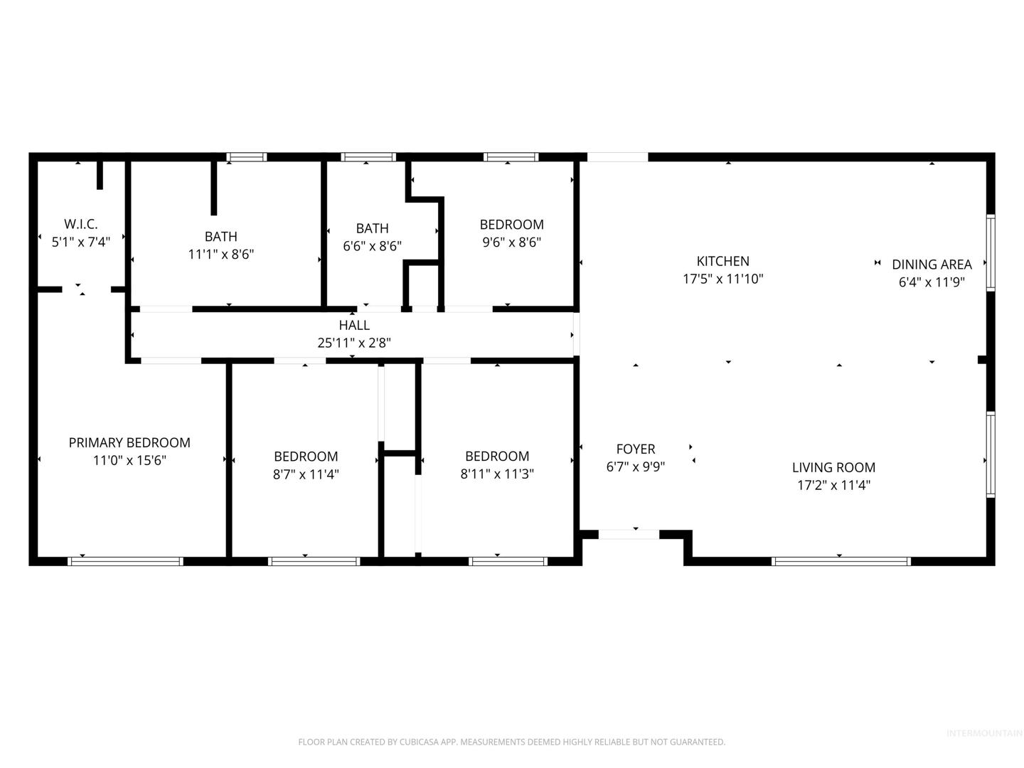
Beds: 4
Baths: 2
Garages: 0
Type: Mobile/Manu Rented Lot
Area: Moscow - 2070
Land Size: Cul-De-Sac
SqFt: 1344
Subdivision: 0 Not Applicable
Year Built: 1975
Lot Size: 0x0 x 0x0
Includes
Air Conditioned: false
Water: City Service
Heating: Forced Air
Schools
School District: Moscow School District #281
Sr High School: Moscow
Jr High School: Moscow
Grade School: West Park and Russell Elementary Schools
Contact for more details:
A-Team Consultants
1099 S Wells St #200, Meridian, ID 83642
Phone: 208.761.1735 Email: info@ateamboise.com
1099 S Wells St #200, Meridian, ID 83642
Phone: 208.761.1735 Email: info@ateamboise.com
Description
Renovated mobile home on a foundation features single-level living with 4 bedrooms and 2 full baths. Updates include new flooring and vinyl windows, roof was resealed in 2023. Primary bedroom has double walk in closet space. Back deck features privacy and views in one of the largest yard spaces in the park with multiple parking spaces. The new washer and dryer set stay with the home. Parks maintains snow removal throughout winter. Buyer must be approved by the park prior to purchase. Park charges monthly lot rent at $590/month plus water/sewer/garbage fee which averages about $125/month.
Legal Description:
Abiel Mobile Home Park #20RA 1975 Academy Golden 56 x 24 SER# CGH16602405940451I TI# 200155022
Abiel Mobile Home Park #20RA 1975 Academy Golden 56 x 24 SER# CGH16602405940451I TI# 200155022
| Listing info for this property courtesy of Moscow Realty Information deemed reliable but not guaranteed. Buyer to verify all information. All properties are subject to prior sale, change or withdrawal. Neither listing broker(s), shall be responsible for any typographical errors, misinformation, misprints and shall be held totally harmless. |



















