2103 Alder # A Lewiston, ID 83501
Directions
Easy to find on Alder Avenue & 21st Street at the top of Lindsay Creek Road.
Price: $419,900
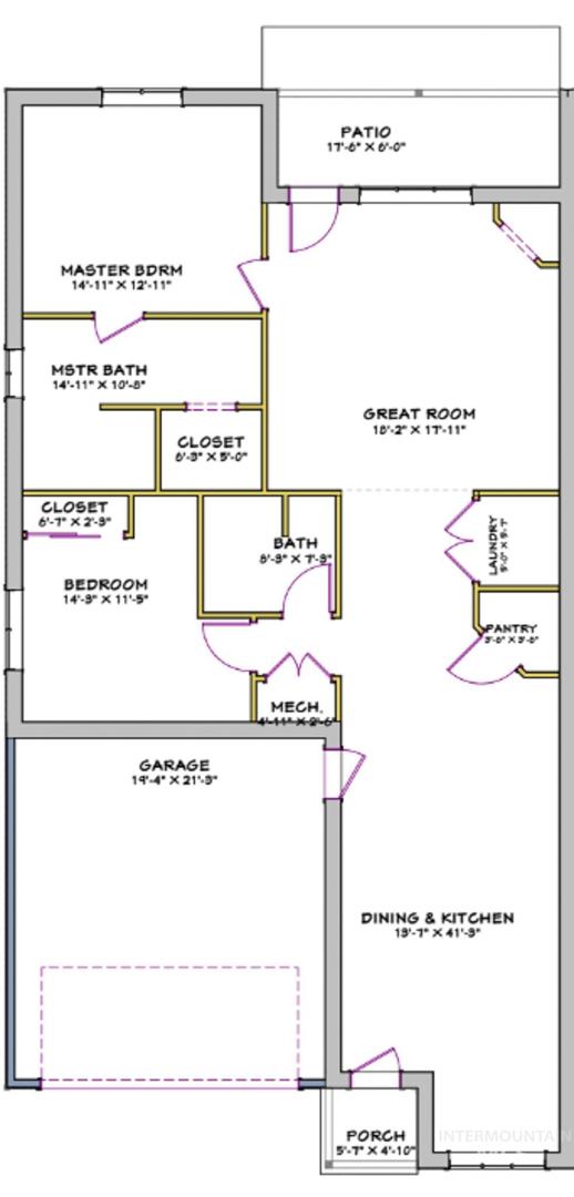
Beds: 2
Baths: 2
Garages: 2
Type: Townhouse
Area: Lewiston Orchards - 2140
Land Size: Sm Lot 5999 SF, Auto Sprinkler System, Full Sprink
SqFt: 1509
Age: Under Construction
Acres: 0.06
Garage Type: true
Subdivision: 0 Not Applicable
Year Built: 2025
Construction: Other
Lot Size: 66.24x40.24 x 66.24x40.24
Includes
Fireplace: One, Gas
Air Conditioned: true
Water: City Service
Heating: Forced Air, Natural Gas
Schools
School District: Lewiston Independent School District #1
Sr High School: Lewiston
Jr High School: Sacajawea
Grade School: Camelot
Contact for more details:
A-Team Consultants
1099 S Wells St #200, Meridian, ID 83642
Phone: 208.761.1735 Email: info@ateamboise.com
1099 S Wells St #200, Meridian, ID 83642
Phone: 208.761.1735 Email: info@ateamboise.com
Description
Lindsay Creek Estates PUD is finally available! This new neighborhood of ICF (insulated foam construction) townhomes are all ADA compliant! With super insulated R50 in the walls & ceiling, they are easy to heat & cool while being super quiet too! Bosch appliances! The rooms are ample and open with custom cabinets & granite throughout. Wheelchair rated flooring, conditioned crawl spaces and the highest rated HVAC systems are yours to appreciate! High speed internet with a GIG to each home is being installed. The fastest available in the LC Valley! Owner/agent
Legal Description:
Lot 3-A , Block 3, Lindsey Creek Estates P.U.D.-Three, according to the recorded plat thereof, records of Nez Perce County, Idaho
Lot 3-A , Block 3, Lindsey Creek Estates P.U.D.-Three, according to the recorded plat thereof, records of Nez Perce County, Idaho
| Listing info for this property courtesy of Professional Realty Services Idaho Information deemed reliable but not guaranteed. Buyer to verify all information. All properties are subject to prior sale, change or withdrawal. Neither listing broker(s), shall be responsible for any typographical errors, misinformation, misprints and shall be held totally harmless. |




















