Property Search Details

5702 Sunset Nampa, ID 83686

Directions

I84. South on Franklin, Head SW on 11th Ave North, East on 7th, South on 12th Avenue South which turns into 45. Continue south just past Bowmont, West on Owyhee, north on Sunset.

Price: $279,900
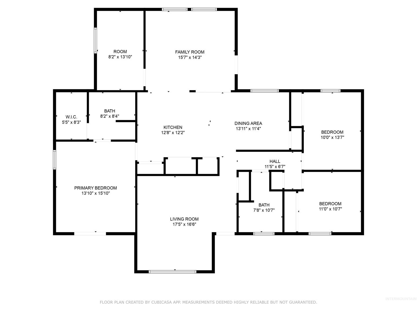
Beds: 4
Baths: 2
Garages: 0
Type: Single Family Residence
Area: Nampa South (86) - 1260
Land Size: 10000 SF - .49 AC, Garden
SqFt: 1852
Acres: 0.25
Subdivision: Rolling Hills (Canyon)
Year Built: 1975
Construction: Frame, Vinyl Siding

Includes

Air Conditioned: false
Water: Shared Well
Heating: Electric, Forced Air

Schools

School District: Nampa School District #131
Sr High School: Skyview
Jr High School: South Middle (Nampa)
Grade School: Lake Ridge

Contact for more details:

A-Team Consultants
1099 S Wells St #200, Meridian, ID 83642
Phone: 208.761.1735   Email: info@ateamboise.com

Description

Welcome to your private Nampa oasis priced under $300k! This spacious single-level home offers four bedrooms, two bathrooms, and two separate living areas, giving you plenty of room to spread out. The kitchen and dining space are designed for gatherings, while the large, fully fenced backyard features multiple storage sheds and covered areas perfect for entertaining or hobbies. The interior and exterior are ready for repairs and cosmetic updates. Whether you’re looking to flip, rent, or hold for long-term equity, this home is a rare find at this price point in Nampa. Bring your vision and transform this property into a great investment or custom home!
Legal Description:
04-1N-2W NE ROLLING HILLS 3 LOT 17 BLK 3
Listing info for this property courtesy of  Homes of Idaho  Information deemed reliable but not guaranteed. Buyer to verify all information. All properties are subject to prior sale, change or withdrawal. Neither listing broker(s), shall be responsible for any typographical errors, misinformation, misprints and shall be held totally harmless.