1648 Center Ave Payette, ID 83611
Directions
Hwy 95 through Payette to Center Ave, Turn E on Center to Property.
Price: $318,000
Beds: 3
Baths: 2
Garages: 0
Type: Single Family Residence
Area: Payette - 1750
Land Size: Standard Lot 6000-9999 SF, Garden, Irrigation Ava
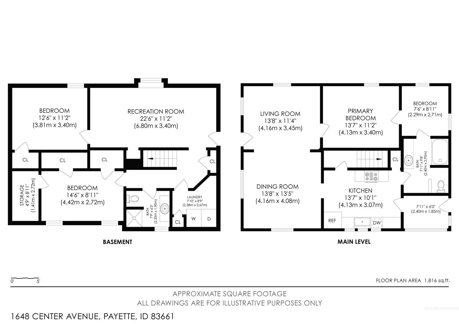
SqFt: 1824
Acres: 0.21
Subdivision: Melcher
Year Built: 1918
Construction: Frame
Includes
Air Conditioned: true
Water: City Service
Heating: Forced Air, Natural Gas
Schools
School District: Payette School District #371
Sr High School: Payette
Jr High School: McCain
Grade School: Payette
Contact for more details:
A-Team Consultants
1099 S Wells St #200, Meridian, ID 83642
Phone: 208.761.1735 Email: info@ateamboise.com
1099 S Wells St #200, Meridian, ID 83642
Phone: 208.761.1735 Email: info@ateamboise.com
Description
Welcome to this cozy home on a .19-acre lot, shaded by mature trees and offering great curb appeal. Inside, you’ll find a quaint kitchen with updated appliances, new flooring, and plenty of storage. The main level includes a mudroom and versatile living space, while the downstairs features 2 bedrooms, a large office, full bathroom, laundry room, and multiple closets for extra storage. With its older charm, minor updates, and thoughtful layout, this home is move-in ready and full of potential. Don’t miss out on this opportunity to own a well-cared-for home in a convenient Payette location!
Legal Description:
E1/2 Of Tax 2, Blk 33, Payette, Melcher
E1/2 Of Tax 2, Blk 33, Payette, Melcher
Listing info for this property courtesy of Hunter of Homes, LLC Information deemed reliable but not guaranteed. Buyer to verify all information. All properties are subject to prior sale, change or withdrawal. Neither listing broker(s), shall be responsible for any typographical errors, misinformation, misprints and shall be held totally harmless. |