Property Search Details

1258 W. Malbar St Meridian, ID 83646

Directions

From Linder road, East on Orchard Park, South on Bergman Ave, West on Malbar.

Price: $845,000
Beds: 3
Baths: 2.5
Garages: 2
Type: Townhouse
Area: Meridian NW - 1030
Land Size: Sm Lot 5999 SF, Auto Sprinkler System, Irrigation
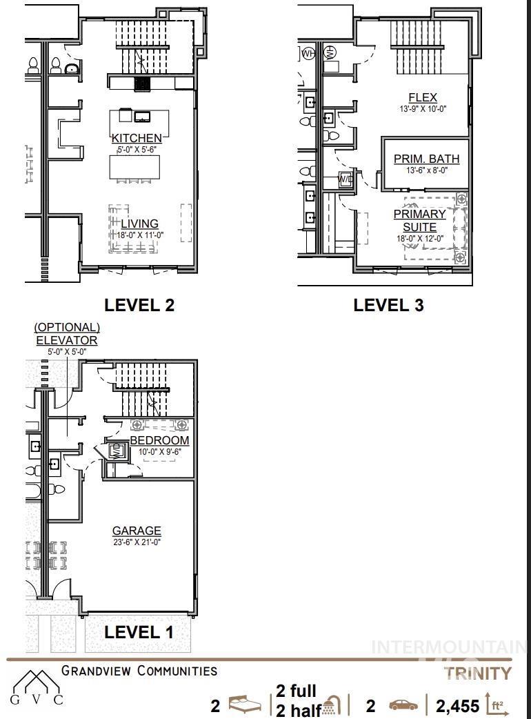
SqFt: 2455
Age: Under Construction
Acres: 0.046
Garage Type: true
Subdivision: Sagarra
Year Built: 2025
Construction: Frame

Includes

Air Conditioned: true
Water: City Service
Heating: Natural Gas

Schools

School District: West Ada School District
Sr High School: Rocky Mountain
Jr High School: Heritage Middle School
Grade School: Paramount

Contact for more details:

A-Team Consultants
1099 S Wells St #200, Meridian, ID 83642
Phone: 208.761.1735   Email: info@ateamboise.com

Description

The Trinity by Grandview Communities redefines modern luxury living in NW Meridian’s premier mixed-use community. This bold tri-level townhome offers 2,455 sq ft of elevated design with rare features not typically found in a townhome. The entry-level guest suite provides a private retreat, while the second floor hosts a serene primary suite with spa-inspired bath, plus a flexible third bedroom or loft. The top-level living area showcases a chef’s kitchen with expansive island, designer finishes, and seamless indoor-outdoor flow to a private patio. Continue upward in the optional elevator to a rooftop terrace with panoramic views—ideal for entertaining with an optional outdoor kitchen. Neighborhood amenities include a resort-style pool, clubhouse, pickleball, gym, shared tool shed and walkable access to dining, shopping, and recreation!
Legal Description:
Lot 18, Block 2, Sagarra Sub No 1
Listing info for this property courtesy of  Homes of Idaho  Information deemed reliable but not guaranteed. Buyer to verify all information. All properties are subject to prior sale, change or withdrawal. Neither listing broker(s), shall be responsible for any typographical errors, misinformation, misprints and shall be held totally harmless.