2043 Prospector Way Twin Falls, ID 83301
Directions
Use GPS
Price: $580,000
Beds: 4
Baths: 2
Garages: 3
Type: Single Family Residence
Area: Twin Falls - 2015
Land Size: Standard Lot 6000-9999 SF
SqFt: 2182
Acres: 0.202
Garage Type: true
Subdivision: Canyon Trails Twin Falls
Year Built: 2017
Construction: Frame, Stone, Stucco
Lot Size: 0x0 x 0x0
Includes
Fireplace: Gas
Air Conditioned: true
Water: City Service
Heating: Forced Air, Natural Gas
Schools
School District: Twin Falls School District #411
Sr High School: Canyon Ridge
Jr High School: Robert Stuart
Grade School: Rock Creek
Contact for more details:
A-Team Consultants
1099 S Wells St #200, Meridian, ID 83642
Phone: 208.761.1735 Email: info@ateamboise.com
1099 S Wells St #200, Meridian, ID 83642
Phone: 208.761.1735 Email: info@ateamboise.com
Description
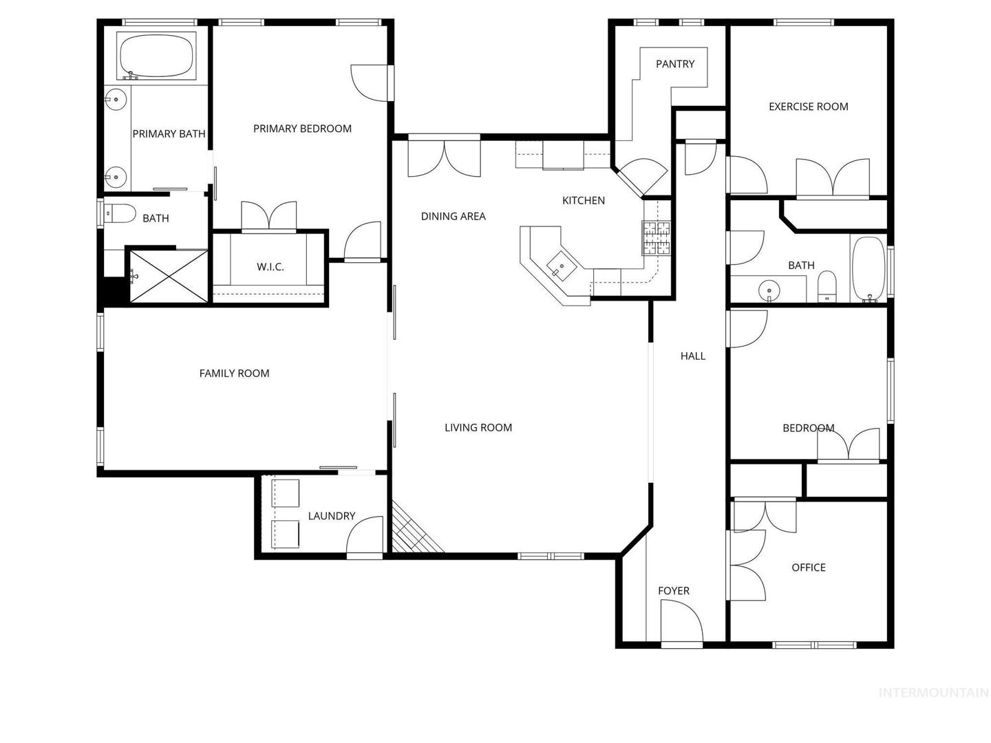
Welcome to this stunning 4-bedroom, 2-bath home perfectly situated in a great location! From the moment you step inside, the wide front entrance invites you into a spacious and thoughtfully updated interior. The living area showcases a beautiful stone fireplace and wood-accented ceilings, adding warmth and character. Custom blinds throughout the home offer both style and functionality. New carpets with a waterproof pad (2021) & fresh tile in the bathrooms provide modern comfort and style. The kitchen is a chef’s delight, featuring a new sink, a 2021 gas stove, & a convenient breakfast bar for casual dining. Retreat to the inviting bedrooms, each designed with charm and comfort in mind. Step outside to a stunning patio with automatic blinds—perfect for relaxing or entertaining year-round. Additional highlights include RV parking, a 10x10 storage shed with a concrete floor, offering ample space for tools, hobbies, or extra storage. This home beautifully blends updates, comfort, and functionality—don’t miss the chance to make it yours!
Legal Description:
Twin Falls Canyon Trails Subd Number 6 Pud Lot 5 Block 20 (32-9-17 Sw)
Twin Falls Canyon Trails Subd Number 6 Pud Lot 5 Block 20 (32-9-17 Sw)
| Listing info for this property courtesy of Keller Williams Sun Valley Southern Idaho Information deemed reliable but not guaranteed. Buyer to verify all information. All properties are subject to prior sale, change or withdrawal. Neither listing broker(s), shall be responsible for any typographical errors, misinformation, misprints and shall be held totally harmless. |




























