309 Lightening Ave Middleton, ID 83644
Directions
Hwy 44/Main St, just west of downtown Middleton, S on Hartley Ln
Price: $394,900
Beds: 3
Baths: 2
Garages: 3
Type: Single Family Residence
Area: Middleton - 1285
Land Size: Standard Lot 6000-9999 SF, Auto Sprinkler System,
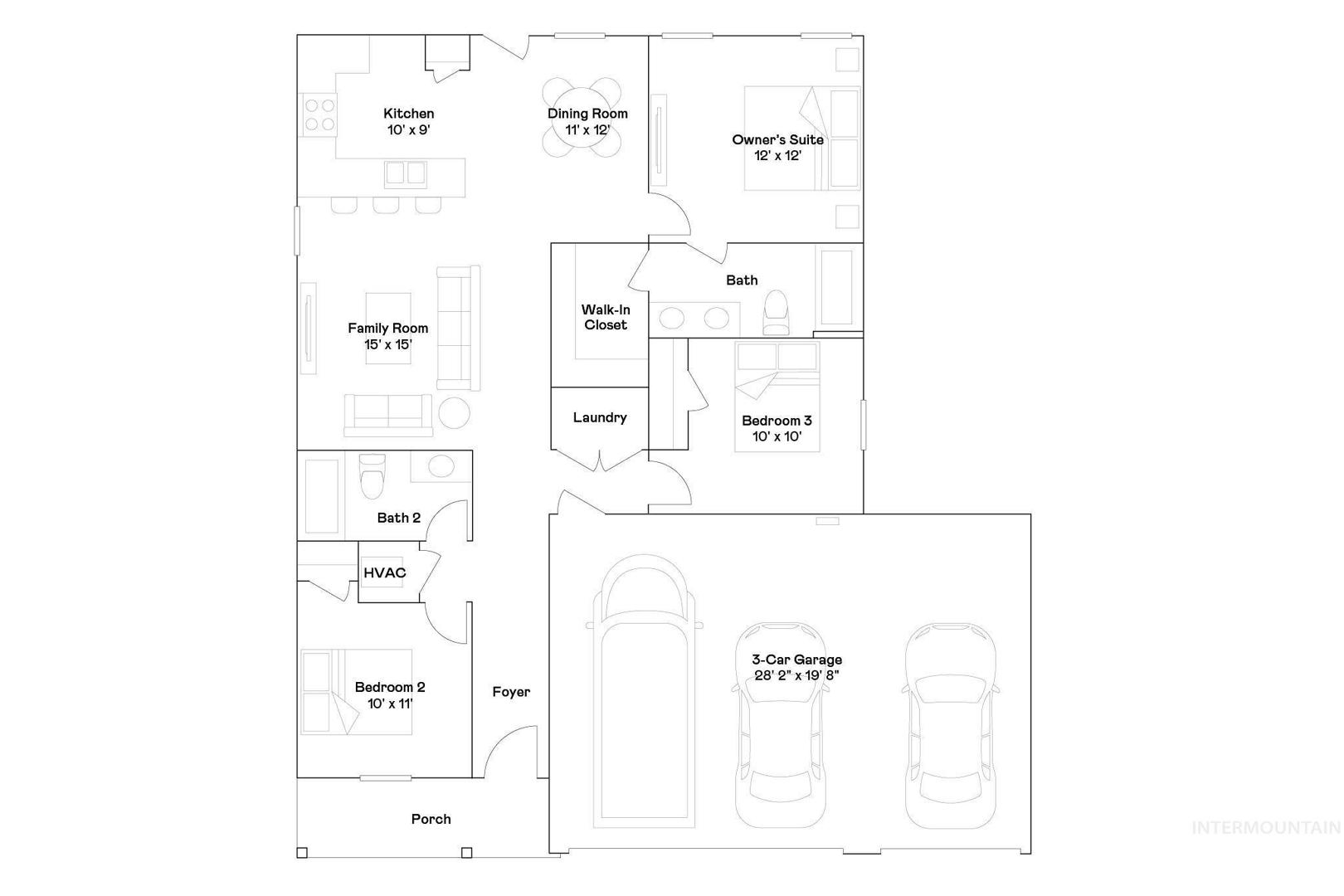
SqFt: 1217
Age: Under Construction
Acres: 0.2
Garage Type: true
Subdivision: Carlton Meadows
Year Built: 2025
Construction: Frame, HardiPlank Type
Includes
Air Conditioned: true
Water: City Service
Heating: Forced Air
Schools
School District: Middleton School District #134
Sr High School: Middleton
Jr High School: Meridian Middle
Grade School: Middleton Heights
Contact for more details:
A-Team Consultants
1099 S Wells St #200, Meridian, ID 83642
Phone: 208.761.1735 Email: info@ateamboise.com
1099 S Wells St #200, Meridian, ID 83642
Phone: 208.761.1735 Email: info@ateamboise.com
Description
Welcome to the American Dream Series, with Lennar`s signature "Everything`s Included", featuring refrigerator, washer/dryer, window blinds, and full landscaping! Your kitchen features stainless steel appliances. Quartz countertops and backsplashes complement the white Shaker-style cabinetry, Luxury vinyl plank flooring, and chrome faucets in the in the kitchen and bathrooms. Other features, like the garage keypad, full aluminum gutters, tankless water heater, and more, make this home reliable and beautiful! Carlton Meadows is a charming neighborhood with open green spaces in the town of Middleton, with easy access to walking trails, city parks, shopping, and the freeway. If you are looking for small town lifestyle with city amenities, Carlton Meadows may be your new home sweet home.
Legal Description:
Lot 02, Block 01, Carlton Meadows Sub, Canyon County, Idaho
Lot 02, Block 01, Carlton Meadows Sub, Canyon County, Idaho
Listing info for this property courtesy of Fathom Realty Information deemed reliable but not guaranteed. Buyer to verify all information. All properties are subject to prior sale, change or withdrawal. Neither listing broker(s), shall be responsible for any typographical errors, misinformation, misprints and shall be held totally harmless. |