5672 E Bridal Veil Falls Dr Nampa, ID 83686
Directions
Locust Lane, between Happy Valley Rd/S Can-Ada Rd and Robinson Lane
Price: $626,900
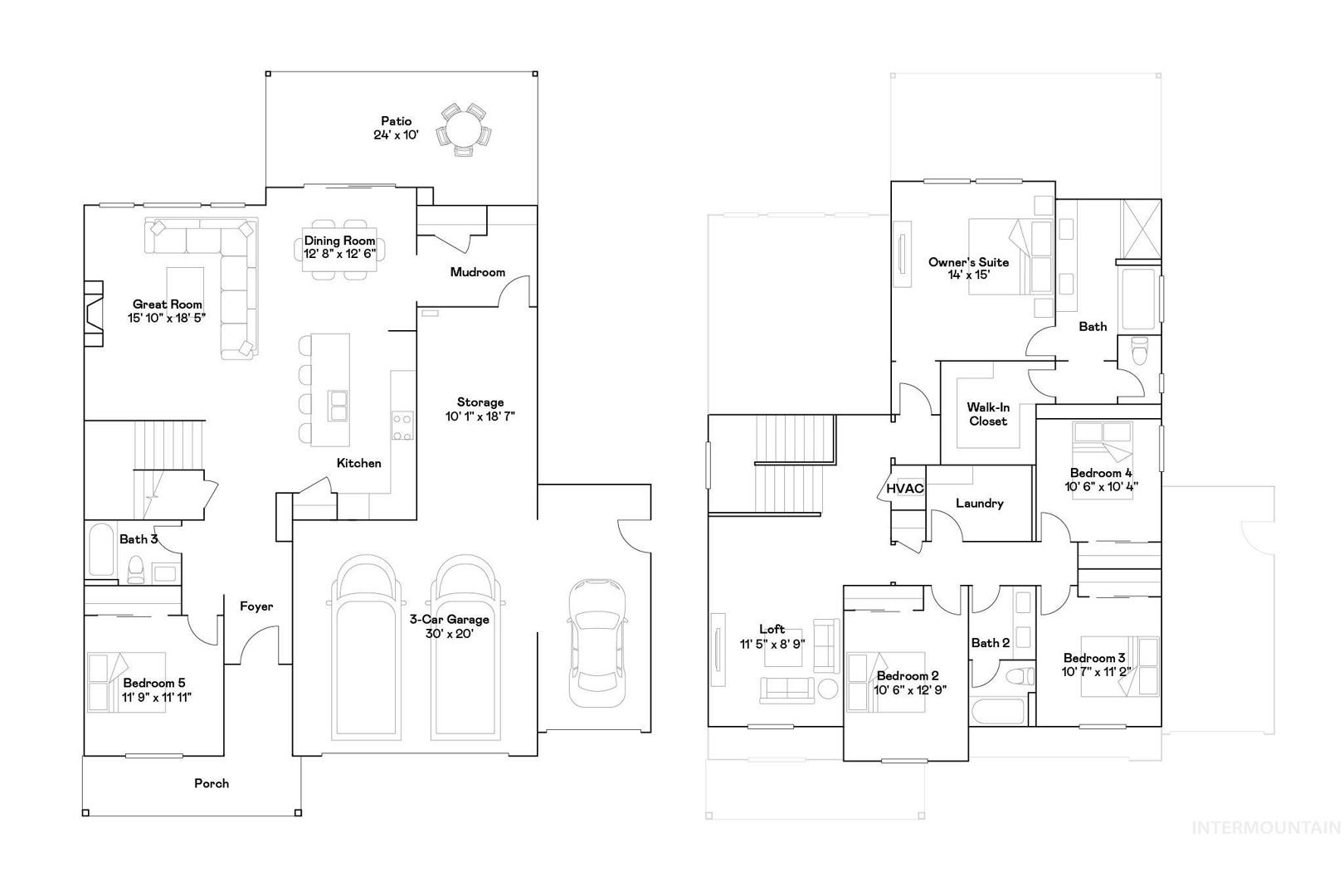
Beds: 5
Baths: 3
Garages: 3
Type: Single Family Residence
Area: Nampa South (86) - 1260
Land Size: 10000 SF - .49 AC
SqFt: 2800
Age: Under Construction
Acres: 0.28
Garage Type: true
Subdivision: Terrace Falls
Year Built: 2026
Construction: Frame, HardiPlank Type
Includes
Fireplace: Gas, Insert
Air Conditioned: true
Water: City Service
Heating: Forced Air
Schools
School District: Nampa School District #131
Sr High School: Columbia
Jr High School: East Valley Mid
Grade School: Endeavor Nampa
Contact for more details:
A-Team Consultants
1099 S Wells St #200, Meridian, ID 83642
Phone: 208.761.1735 Email: info@ateamboise.com
1099 S Wells St #200, Meridian, ID 83642
Phone: 208.761.1735 Email: info@ateamboise.com
Description
Luxury lives in the details with the All-Star Series. This premium collection features 9’ ceilings on the main level, creating a bright and open living space complete with a cozy fireplace and covered patio. The gourmet kitchen offers double ovens, a gas cooktop, quartz countertops, a walk-in pantry, and designer cabinetry. You’ll also find quartz countertops in the bathrooms, with luxury vinyl plank flooring throughout the main living areas. Added touches like 6” baseboards, garage service doors, full aluminum gutters, and tankless water heaters reflect the high standards of this standout series. Terrace Falls offers room to roam around, with large estate size homesites, tot lot, and green spaces. Situated in southeast Nampa, you can see the mountains and open farmland, as you relax in your new luxury filled home.
Legal Description:
Lot 39, Block 02, Terrace Falls Sub, Canyon County
Lot 39, Block 02, Terrace Falls Sub, Canyon County
| Listing info for this property courtesy of Fathom Realty Information deemed reliable but not guaranteed. Buyer to verify all information. All properties are subject to prior sale, change or withdrawal. Neither listing broker(s), shall be responsible for any typographical errors, misinformation, misprints and shall be held totally harmless. |

































