2253 Waite Rd Midvale, ID 83645
Directions
From Highway 95 turn West on Keithly Creek then turn West on Waite Rd.
Price: $550,000
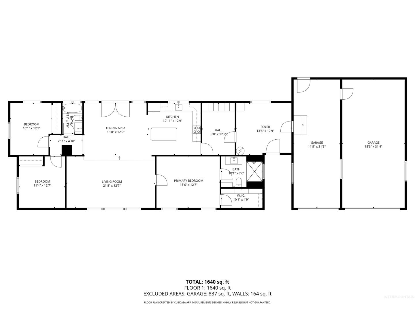
Beds: 3
Baths: 2
Garages: 2
Type: Single Family w/ Acreage
Area: Midvale - 1875
Land Size: 5 - 9.9 Acres, Garden, Horses, R.V. Parking, Views
SqFt: 1680
Acres: 5.01
Garage Type: true
Subdivision: 0 Not Applicable
Year Built: 1985
Lot Size: 727.5`x300` x 727.5`x300`
Includes
Air Conditioned: true
Water: Well
Heating: Electric, Forced Air
Schools
School District: Midvale School District #433
Sr High School: Midvale
Jr High School: MidvaleJrHigh
Grade School: Midvale
Contact for more details:
A-Team Consultants
1099 S Wells St #200, Meridian, ID 83642
Phone: 208.761.1735 Email: info@ateamboise.com
1099 S Wells St #200, Meridian, ID 83642
Phone: 208.761.1735 Email: info@ateamboise.com
Description
Newly updated manufactured home with stick built addition/garages sitting on 5 acres just outside Midvale. This move-in ready property features new flooring and a Custom Tile Shower in the Master Bath. The insulation in the Crawl space has been completely replaced. The kitchen shines with new appliances and farmhouse sink in kitchen and fixtures in both bathrooms giving it a more modern look. New cabinets in the pantry/storage area and fresh touch to the mud room, coming in from elements to hang those coats or kick off your boots. French doors take you out to a small deck overlooking the newly planted lawn that shows both the fall colors of the mature trees and views of Hitt Mountain. Use the new paver walkway to your one car and RV garage that has plenty of room for your variety of toys while 2 separate rooms above could be your office, hobby room, game room or just a spot for overnight guests. Workshop area is attached to covered parking area, great for all your other needs to keep out of the sun or winter months or to use for a barn. You are just a short drive away from public ground for hunting or any other outdoor adventures. Enjoy a short drive down into Midvale and all it has to offer with different outings to Crane Creek Reservoir or to the Weiser River. With so many more possibilities in any direction, don’t miss this opportunity to enjoy country living.
Legal Description:
Exhibit A
Exhibit A
| Listing info for this property courtesy of Re/Max Land & Home Information deemed reliable but not guaranteed. Buyer to verify all information. All properties are subject to prior sale, change or withdrawal. Neither listing broker(s), shall be responsible for any typographical errors, misinformation, misprints and shall be held totally harmless. |

















































