712 N 4th St Parma, ID 83660
Directions
From US-20/26 go north on 4th St. Home is at the corner of 4th St. and McConnell Ave.
Price: $535,000
Beds: 5
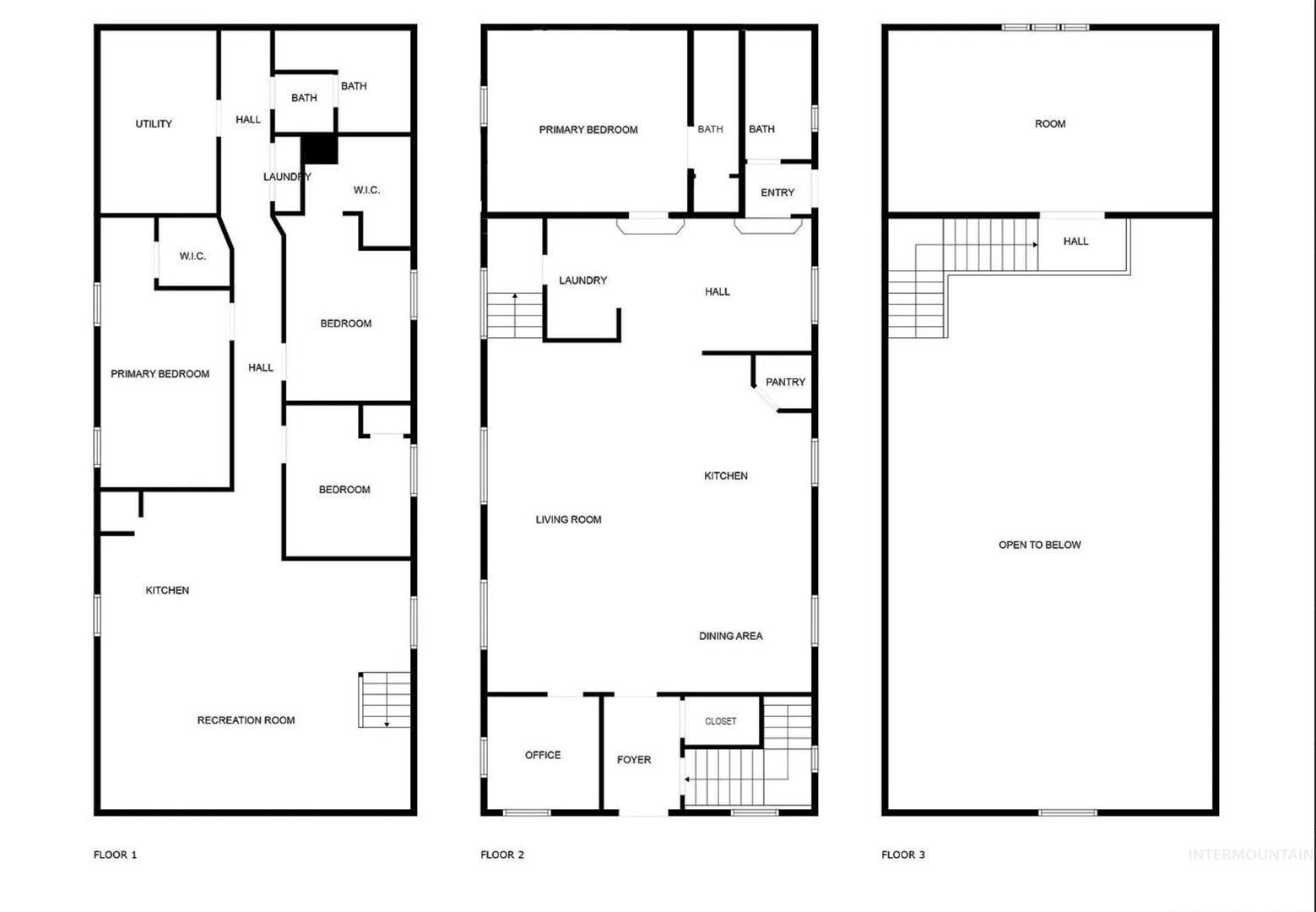
Baths: 3
Garages: 0
Type: Single Family Residence
Area: Parma - 1292
Land Size: 10000 SF - .49 AC, Garden, Irrigation Available, C
SqFt: 3480
Acres: 0.34
Subdivision: Bates
Year Built: 1950
Construction: Frame, Stucco
Lot Size: 125x122 x 125x122
Includes
Fireplace: Gas
Air Conditioned: true
Water: City Service
Heating: Forced Air, Natural Gas
Schools
School District: Parma School District #137
Sr High School: Parma
Jr High School: Parma Jr
Grade School: Parma
Contact for more details:
A-Team Consultants
1099 S Wells St #200, Meridian, ID 83642
Phone: 208.761.1735 Email: info@ateamboise.com
1099 S Wells St #200, Meridian, ID 83642
Phone: 208.761.1735 Email: info@ateamboise.com
Description
Step inside a truly one-of-a-kind versatile home where character and comfort meet. This stunning 5 bedroom/3 bathroom home features beautiful hardwood floors throughout, soaring 25` ceilings with roughhewn wood beams, an abundance of natural light, and breathtaking stained glass windows that add timeless charm. In addition to the kitchen and living room, the main level offers a spacious primary ensuite, an additional bedroom, and another bathroom, creating an ideal layout for everyday living. Downstairs, the fully finished basement maximizes the living space with three bedrooms, one bathroom, a second full kitchen, and living room-perfect for multi-generational living or extended stays. With a private entrance already in the foyer, the lower level presents an excellent opportunity for owner/occupants seeking rental income or live/work lifestyles. This home sits on a corner lot of over 1/3 of an acre to enjoy the yard with room for chickens, a garden, and more, all with no HOA restrictions. This unique property offers endless possibilities and is truly a must-see.
Legal Description:
Lots 1-5, Block 53, BATES ADDITION to Parma, according to the plat thereof, filed in Book 2 of Plats at page 16, records o f Canyon County, Idaho.
Lots 1-5, Block 53, BATES ADDITION to Parma, according to the plat thereof, filed in Book 2 of Plats at page 16, records o f Canyon County, Idaho.
| Listing info for this property courtesy of Silvercreek Realty Group Information deemed reliable but not guaranteed. Buyer to verify all information. All properties are subject to prior sale, change or withdrawal. Neither listing broker(s), shall be responsible for any typographical errors, misinformation, misprints and shall be held totally harmless. |

















































